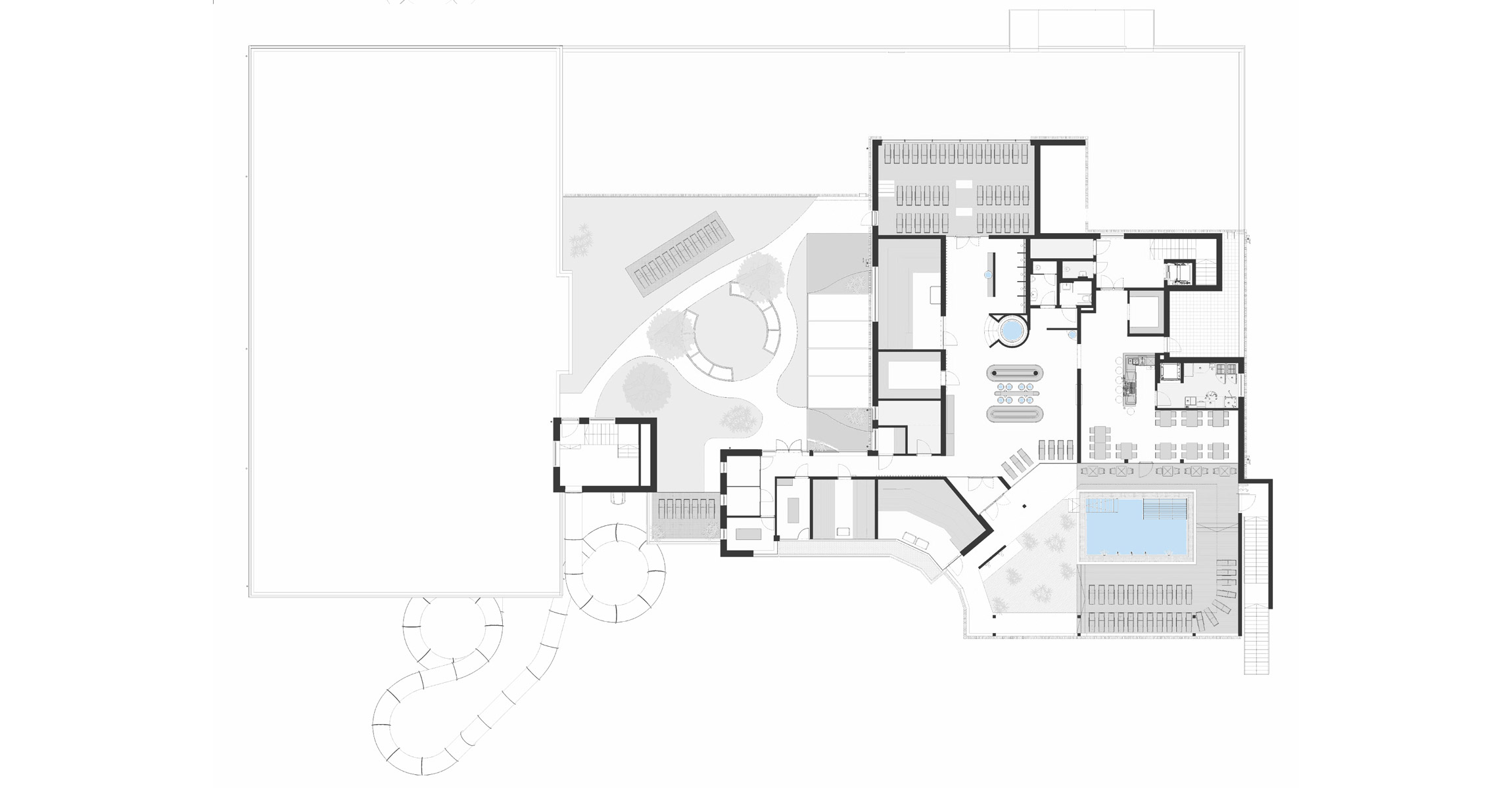
Hallen- und Freibad

Telfs, AT

  • Grundstücksfläche: 22.600 m²
  • Nutzflächen: 4.800 m²
  • Umbauter Raum: 28.000 m³
  • Wasserfläche indoor: 650 m²
  • Wasserfläche outdoor: 510 m²
  • Außenflächen: 15.000 m²
  • Nutzungen: Frei- und Hallenbad mit Restaurant und Saunalandschaft, 2 Beachvolleyball-Plätze

Ausgangssituation

2 Grundstücke sollten als Alternativ-Standorte für das neu Hallen- und Freibad untersucht und konzeptionell geplant werden. Die Entscheidung fiel für das innerörtliche Grundstück mit dem bestehenden Hallen- und Freibad aus. Dieses sollte einem Ersatz-Neubau weichen.

Lage Grundstück

  • Inner örtliche Lage
  • südorientierte Hanglage mit Bergpanorama
  • Parkähnliches Grundstück mit alten Baumbestand

Leitidee Entwurf

Der Entwurf geprägt durch die terrassenartige Gestaltung und Positionierung der Hauptnutzungsbereiche von Saunabereich über Schwimmhalle bis Liegeterrassen mit Freibecken nutzt die maximalen Blickbeziehungen in die Landschaft aus. Material- und Farbgestaltung im Innenraum und an der Gebäudehülle verstärken die Integrierung in die Umgebung Die funktionale Trennung zwischen Sportschwimmhalle, Nichtschwimmerbereich mit Kinderbecken und Wellnessbereich verhindert nutzerspezifische Konflikte der Hauptzielgruppen Familien, Sportschwimmer, Ruhe- und Gesundheitssuche.